0
Sous-compromis
Exclusif

Echirolles 2éme étage superbe 3 pièces + cuisine avec 86m² d'extérieurs

Échirolles (38130)
Réf : 1630

SOUS COMPROMIS

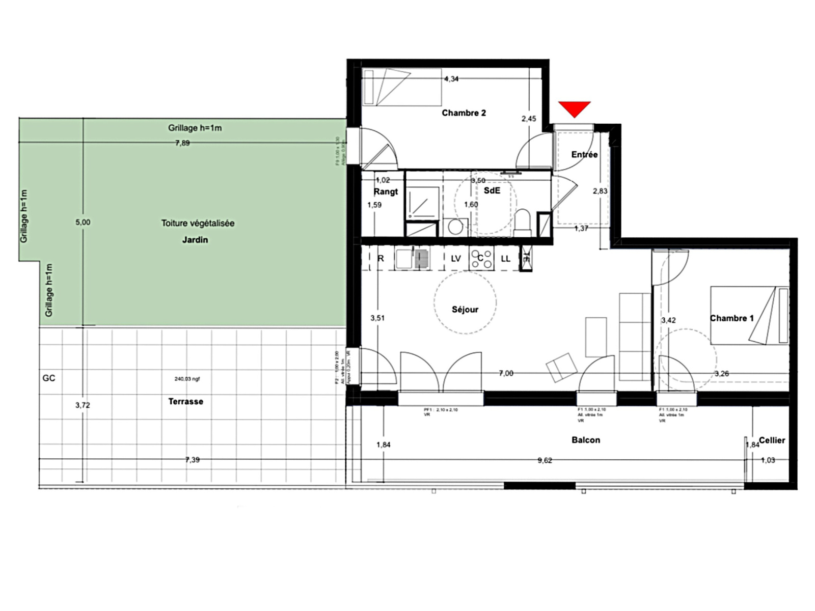
Dans la copropriété récente "Open Set", édifiée en 2021 et comprenant 52 lots principaux, coup de coeur pour ce très bel appartement de 3 pièces + cuisine de 57m2 env.au 2ème étage avec ascenseur. Bénéficiant de 86m2 d'extérieurs privatifs ( une terrasse de 27m2, un balcon de 17,7 m2 et un jardin de 40m2 avec un cabanon. Tous sont exposés de façon optimale Est, Sud et Ouest. Doté de prestations soignées et contemporaines, il offre un espace vie de 25m2 avec une cuisine équipée Cuisinella. Les chambres sont parquetées et disposent chacune d'un grand rangement aménagé, la salle d'eau avec douche à l'italienne comporte un meuble sous vasque ainsi que les toilettes. En dépendance un garage en sous-sol de 16m2 en sus du prix (15 000 €).

Les charges annuelles prévisionnelles sont de 1630€ et comprennent le chauffage urbain, l'eau chaude et l'eau froide. La taxe foncière est de 1820€ avec le garage.

DPE B, GES B, estimation des coûts annuels du logement en énergies : entre 470 € et 680 € (estimation basée sur les prix moyens des énergies indexés sur les consommations 2021, 2022 et 2023).

Les honoraires sont à la charge du vendeur

découvrir le bien
Prix du bien 170 000 €
Pièce(s) 3
Chambre(s) 2

Caractéristiques du bien

Caractéristiques Valeurs
Code postal 38130
Surface habitable (m²) 56,76 m²
Surface loi Carrez (m²) 56,76 m²
Nombre de chambre(s) 2
Nombre de pièces 3
Etage 2
Ascenseur OUI
Vue dégagée
Nb de salle d'eau 1
Cuisine Américaine
Type de cuisine Equipée
Mode de chauffage Autre
Type de chauffage Radiateur
Format de chauffage Collectif
Visiophone OUI
Balcon OUI
Terrasse OUI
Nombre de garage 1
Exposition Sud-Est
Année de construction 2021

Infos financières

Caractéristiques Valeurs
Prix de vente 170 000 €
Les honoraires d'agence seront intégralement à la charge du vendeur  
Taxe foncière annuelle 1 820 €

Bilans énergétiques

DPE GES
Ce bien vous intéresse ?
Fieldset par défaut
Fieldset par défaut
Validation

* Champs obligatoires

Contacter l'agence
Validation
Les informations recueillies sur ce formulaire sont enregistrées dans un fichier informatisé par La Boite Immo agissant comme Sous-traitant du traitement pour la gestion de la clientèle/prospects de l'Agence / du Réseau qui reste Responsable du Traitement de vos Données personnelles.
La base légale du traitement repose sur l’intérêt légitime de l'Agence / du Réseau.
Elles sont conservées jusqu'à demande de suppression et sont destinées à l'Agence / au Réseau.
Conformément à la loi « informatique et libertés », vous pouvez exercer votre droit d'accès aux données vous concernant et les faire rectifier en contactant l'Agence / le Réseau.
Si vous estimez, après avoir contacté l'Agence / le Réseau, que vos droits « Informatique et Libertés » ne sont pas respectés, vous pouvez adresser une réclamation à la CNIL.
Nous vous informons de l’existence de la liste d'opposition au démarchage téléphonique « Bloctel », sur laquelle vous pouvez vous inscrire ici : https://www.bloctel.gouv.fr 
Dans le cadre de la protection des Données personnelles, nous vous invitons à ne pas inscrire de Données sensibles dans le champ de saisie libre
Ce site est protégé par reCAPTCHA, les Politiques de Confidentialité et les Conditions d'Utilisation de Google s'appliquent.
Ces biens peuvent vous intéresser